Регенеративный патрон РП-100 — для системы регенерации воздуха ЗС ГО
Регенеративный патрон РП-100 используется в фильтровентиляционном оборудовании убежищ и иных защитных строений гражданской обороны (ЗС ГО), цена данного регенеративного патрона на нашем сайте ниже среднерыночной. Предназначен для очищения воздуха от двуокиси углерода (СО2).
Климатические условия эксплуатации:
температура среды — 18-35 °C, ее относительная влажность — 30-95%. Сертифицированный товар, который соответствует требованиям ТУ Г, проходит проверку ОТК предприятия-изготовителя и приемку .
Прямо сейчас в компании «Специальные проекты и оборудование» вы можете приобрести регенеративный патрон РП-100. Цену предлагаем от производителя. Подайте заявку! И мы немедленно отправим по указанному адресу сертифицированный товар. Выезд специалиста для консультации бесплатно!
Устройство и принцип действия регенеративного патрона РП-100
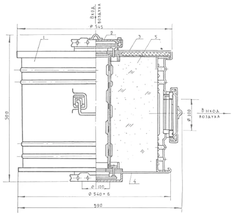
Патрон РП-100 представляет собой металлический кожух (1), окрашенный в защитный цвет. На корпусе расположены три отверстия: боковое — выходное, нижнее и верхнее — входные. В полости находится перфорированный цилиндр, заполненный гранулированным поглотителем ХП-И (5).

Рис 1. Конструкция и габаритные размеры регенеративного патрона РП-100
Обозначения: 1 – кожух; 2 – заглушка с ручкой; 3 – крышка; 4 – донышко; 5 – поглотитель.
При концентрации двуокиси углерода более 2% запускается устройство. Воздух поступает в патрон через входное отверстие, затем в поглотителе, через который проходит, очищается от СО2 и поступает в воздухопровод через выходной проход. Если спустя время содержание двуокиси углерода снова возрастает (примерно до 3%), то устанавливается новый регенеративный патрон, а старый с исчерпанным ресурсом — утилизируется. Наша компания также занимается утилизацией регенеративных патронов РП-100. Оставить заявку на утилизацию РП-100.
Регенеративные патроны РП-100: варианты исполнений
Изделие способно очищать воздух с производительностью 100 м3/ч под напором или разрежением. При потребности в 200 или 300 м3/ч патроны устанавливаются друг на друга в колонку в количестве 2 либо 3 штук, соответственно. Для устройства установок в этом случае используются специальные монтажные детали, которые поставляются в отдельной таре.

Рис. 2. Монтажные схемы регенеративных патронов РП-100
Регенеративные патроны идентифицируются маркировкой. На корпусе обязаны присутствовать:
● условное обозначение предприятия;
● название изделия;
● дата создания;
● заводской номер;
● сопротивление постоянному потоку в Па либо мм вод. ст.
Патроны упаковываются по одному в деревянные ящики. К каждой партии (или изделию) прилагаются: паспорт либо формуляр с печатями ОТК производителя и ВП, руководство по эксплуатации, сертификат соответствия ТУ.
Требования к регенеративному патрону РП-100
Патрон регенеративный — составная часть регенативного оборудования фильтровентиляционной системы объекта гражданской обороны. Поставляется заказчику после обязательного прохождения ОТК завода и приемки. Изделие, заверенное соответствующими печатями, считается высококачественным и соответствующим требованиям безопасной эксплуатации и техусловий.
Регенеративные патроны РП-100 должны:
● поглощать диоксид углерода из воздуха убежища;
● эксплуатироваться только 1 раз;
● интегрироваться в фильтровентиляционную систему с использованием деталей, поставляемых в комплекте.
Обратите внимание! Выбирая патрон, ознакомьтесь с его характеристиками: на вкладке «Характеристики» на этой странице.
Изделие маркируется, пакуется в деревянный ящик и вместе с документацией (руководством по эксплуатации, сертификатом соответствия, формуляром или паспортом) поставляется заказчику. На устройстве должно быть нанесено: на крышке — обозначение «выход воздуха; на корпусе — год изготовления, номера партии и изделия, показатель сопротивления воздушному потоку.
Купить регенеративный патрон РП-100 с доставкой
Компания «Специальные проекты и оборудование» без посредников продает оборудование для коллективной защиты в ЗС ГО. По цене ниже среднерыночной предлагаем купить регенеративные патроны РП-100 и комплектные монтажные детали. Товар отвечает требованиям ТУ , о чем свидетельствует сертификат соответствия.
Ознакомьтесь с изделием, запросите коммерческое предложение и сделайте заказ!
Гарантируем быструю отгрузку и оперативную доставку.
Выезд специалиста для консультации бесплатно!
Пример технического описания РП-100:
Регенеративный патрон РП-100
Патрон предназначен для поглощения диоксида углерода из воздуха помещений убежищ, работающих в режиме регенерации (полной изоляции) внутреннего воздуха и при создании подпора атмосферным воздухом.
Регенеративный патрон является переснаряжаемым с возможностью замена отработанного картриджа на новый силами заказчика без привлечения сторонней организации.
Основные параметры, технические характеристики и размеры регенеративного патрона РП-100
|
Наименование параметра |
ед.изм. |
РП-100 |
|
Масса патрона, нетто не более |
кг |
90 |
|
Номинальный объемный расход |
м3/ч |
100 |
|
Габаритные размеры патрона не более ШхВхГ |
мм |
590х500х545 |
Регенеративный патрон РП-100 представляет собой металлический кожух цилиндрической формы, окрашенный полимерной эмалью защитного цвета, со съёмной крышкой и дном. На корпусе имеется отверстие для входа воздуха, на крышке – отверстие для выхода воздуха, на дне – отверстие для прохода очищенного воздуха от других патронов, в случае если в фильтровентиляционной системе предусмотрен монтаж двух или трех патронов. Отверстия герметично закрываются заглушками с прокладками.
Регенеративный патрон снаряжается РП-100 сменным картриджем, состоящим из сорбционного фильтра, с активным веществом и имеющий паспорт на партию. Конструкция патрона предусматривает возможность визуального определения годности шихты (химпоглотителя) по изменению цвета.
Используемые материалы стойкие к воздействию агрессивных сред во всём диапазоне эксплуатационных температур.
На всех заглушках и крышке корпуса наклеены пломбы для определения нарушения целостности их закрытия и как следствие герметичности изделия.
Регенеративные патроны поставляются в заводской упаковке
– деревянные ящики, в каждом по одной единице изделия РП-100 – 1 шт.
сопровождаться следующими документами:
- паспорт на регенеративный патрон с техническим описанием и инструкцией по эксплуатации – 1 шт. на изделие.
Гарантийный срок на регенеративный патрон РП-100:
Не менее 10 лет - при консервации регенеративных патронов в смонтированном виде;
Монтажный комплект для регенеративного патрона РП-100 (1/3)
Патрубок угловой;
Стакан;
Тройник;
Хомут стяжной;
Муфта.

