ТУ 25.99.21-006-52404267-2018
Назначение
Ворота защитные герметические распашные предназначены для установки на въездных проемах защитных сооружений специального назначения с целью защиты от воздействия ударной волны и проникновения отравляющих веществ в убежище.
Защитно-герметические ворота устанавливаются одновременно с монтажом арматуры стен до бетонирования (в процессе строительства).
Условное обозначение
Технические характеристики ВУ(ОЗ)
|
Тип убежища |
Тип ворот |
Размер проема,мм |
Габаритные размерымм |
Масса, кг |
Серия |
|
I |
ВУ (СПИО) |
3000х2400 |
3660х2620х560 |
- |
01.036-6 |
|
I |
ВУ(СПИО)-I-5 |
3000х2400 |
3656х2816х450 |
4190 |
01.036-6 |
|
I |
ВУ(СПИО)-I-6 |
2200х2400 |
2736х2816х425 |
- |
01.036-6 |
|
II |
ВУ(СПИО)-II-3 |
3000x2200 |
3660x2620x360 |
2970 |
01.036-6 |
|
II |
ВУ(СПИО)-II-5 |
3000x2400 |
3656x2816x410 |
3600 |
01.036-6 |
|
II |
ВУ(СПИО)-II-6 |
2200x2400 |
2736x2816x270 |
- |
01.036-6 |
|
III |
ВУ(СПИО)-III-3 |
3000x2200 |
3660x2620x320 |
1970 |
01.036-6 |
|
III |
ВУ(СПИО)-III-5 |
3000x2400 |
3656x2816x350 |
2465 |
01.036-6 |
|
III |
ВУ(СПИО)-III-6 |
2200x2400 |
2736x2016x220 |
- |
01.036-6 |
|
IV |
ВУ(СПИО)-IV-1 |
3300x2200 |
3656x2816x460 |
- |
01.036-6 |
|
IV |
ВУ(СПИО)-IV-3 |
3000x2400 |
2816x2316x330 |
1035 |
01.036-6 |
|
IV |
ВУ(СПИО)-IV-4 |
3000x2400 |
2816x3656x330 |
2132 |
01.036-6 |
|
I |
ВУ(СПИО)-I-4 |
3000x2200 |
- |
6230 |
01.036-6 |
|
I |
ВУ(СПИО)-I-7 |
2200x2400 |
- |
4610 |
01.036-6 |
|
II |
ВУ(СПИО)-II-4 |
3000x2200 |
- |
5515 |
01.036-6 |
|
III |
ВУ(СПИО)-III-2 |
3000x3600 |
- |
7165 |
01.036-6 |
|
IV |
ВУ(СПИО)-IV-2 |
3000x2200 |
- |
2120 |
01.036-6 |
|
IV |
ВУ(СПИО)-IV-7 |
2200x2400 |
- |
2310 |
01.036-6 |
|
I |
ВУ(СПИО)-I-1 |
2200x2400 |
- |
3052 |
01.036-6 |
|
II |
ВУ(СПИО)-II-2 |
2200х2400 |
- |
2626 |
01.036-6 |
|
III |
ВУ(СПИО)-III-1 |
2200x2400 |
- |
1930 |
01.036-6 |
|
I |
ВУ(СПИО)-I-2 |
3000x2400 |
- |
4261 |
01.036-6 |
|
II |
ВУ(СПИО)-II-2 |
3000x2400 |
- |
3650 |
01.036-6 |
Ворота защитно-герметические распашные ВУ(ОЗ)–III-5
предназначены для установки в проемы 3000 х 2400 мм и применяются в качестве наружных для тамбуров, а также в качестве наружных, и внутренних для тамбуров – шлюзов.
Ворота защитно-герметические распашные ВУ(ОЗ)–III-5
Ворота защитно-герметические распашные ВУ(ОЗ)-I-3
предназначены для установки в проемы 3000 х 2200 мм и применяются в качестве наружных для тамбуров, а также в качестве наружных и внутренних для тамбуров – шлюзов.
Ворота защитно-герметические распашные ВУ(ОЗ)–I-3
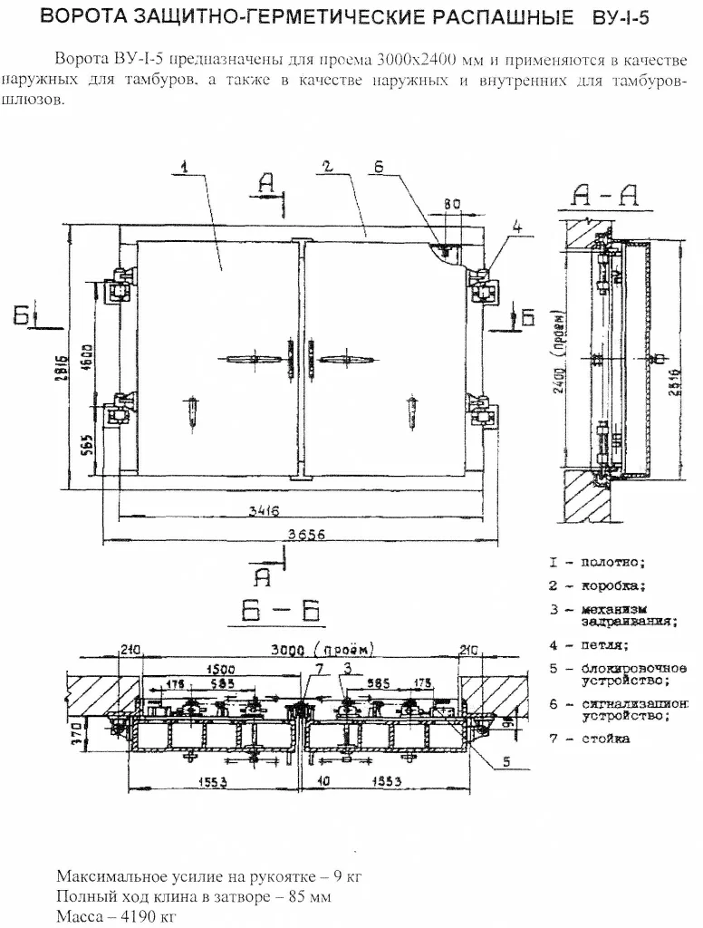
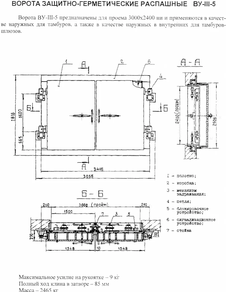
Ворота защитно-герметические распашные ВУ(ОЗ)-I-5
предназначены для установки в проемы 3000 х 2400 мм и применяются в качестве наружных для тамбуров, а также в качестве наружных и внутренних для тамбуров – шлюзов.
Ворота защитно-герметические распашные ВУ(ОЗ)–I-5
Ворота защитно-герметические распашные ВУ(ОЗ)–I-6
предназначены для установки в проемы 2200 х 2400 мм и применяются в качестве наружных для тамбуров, а также в качестве наружных и внутренних для тамбуров – шлюзов.
Ворота защитно-герметические распашные ВУ(ОЗ)–I-6
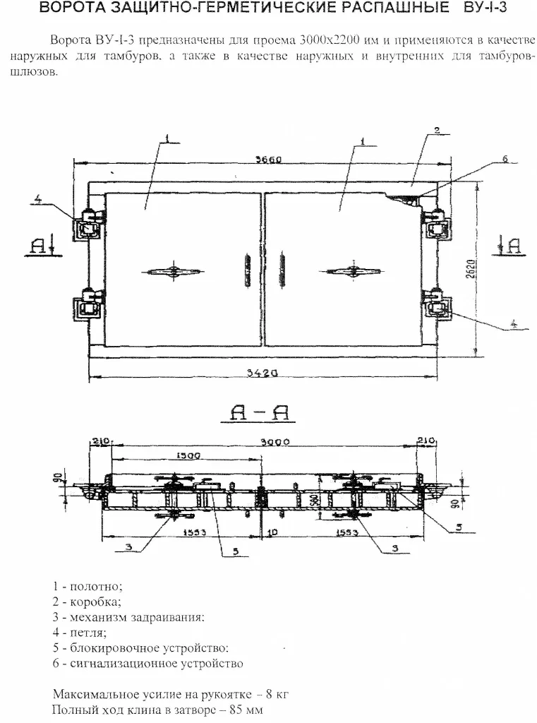
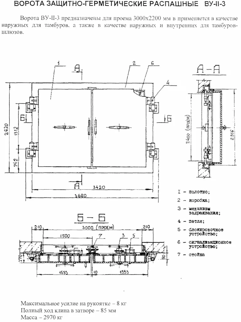
Ворота защитно-герметические распашные ВУ(ОЗ)-II-3
предназначены для установки в проемы 3000 х 2200 мм и применяются в качестве наружных для тамбуров, а также в качестве наружных и внутренних для тамбуров – шлюзов.
Ворота защитно-герметические распашные ВУ(ОЗ)–II-3
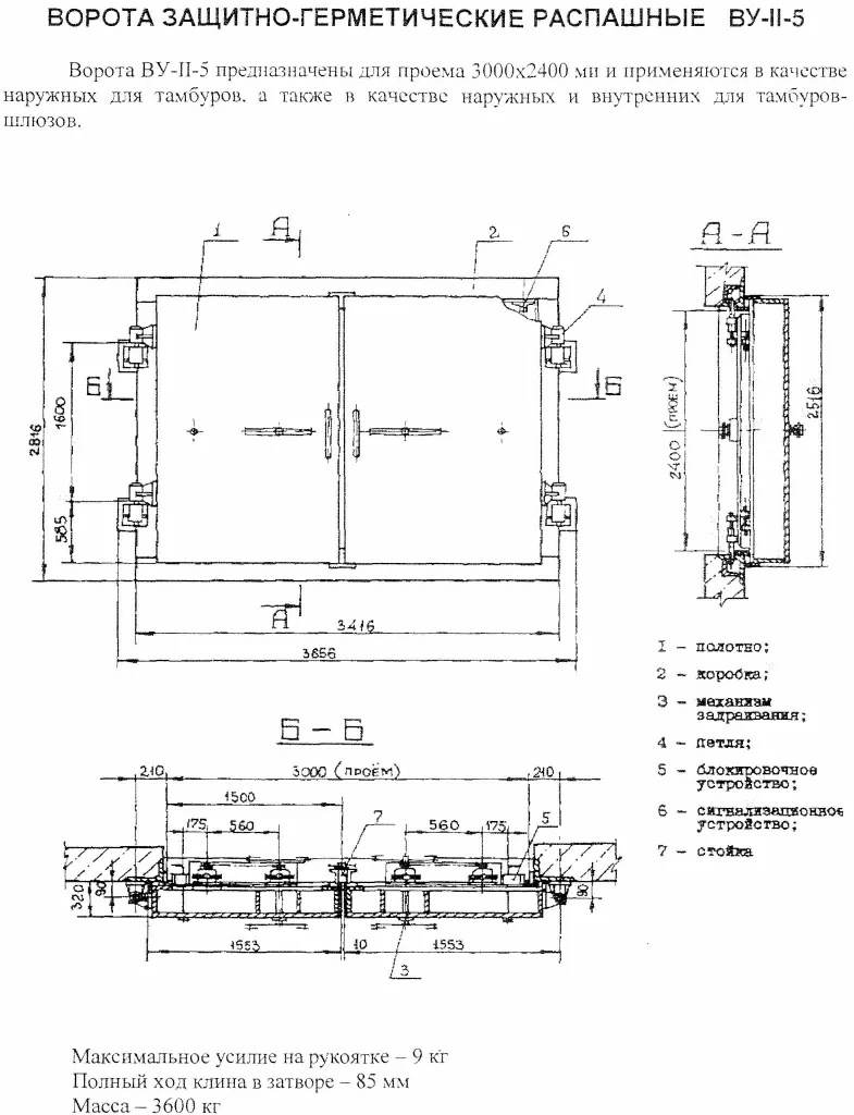
Ворота защитно-герметические распашныеВУ(ОЗ)–II-5
предназначены для установки в проемы 3000 х 2400 мм и применяются в качестве наружных для тамбуров, а также в качестве наружных и внутренних для тамбуров – шлюзов.
Ворота защитно-герметические распашные ВУ(ОЗ)–II-5
Ворота защитно-герметические распашные ВУ(ОЗ)–II-6
предназначены для установки в проемы 2200 х 2400 мм и применяются в качестве наружных для тамбуров, а также в качестве наружных и внутренних для тамбуров – шлюзов.
Ворота защитно-герметические распашные ВУ(ОЗ)–II-6
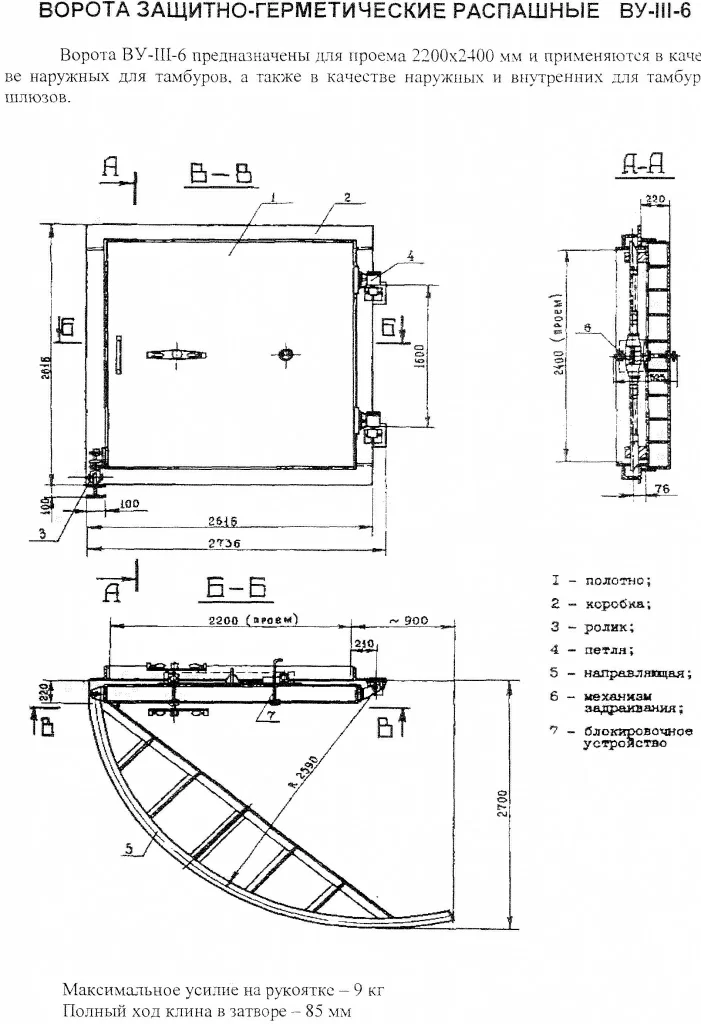
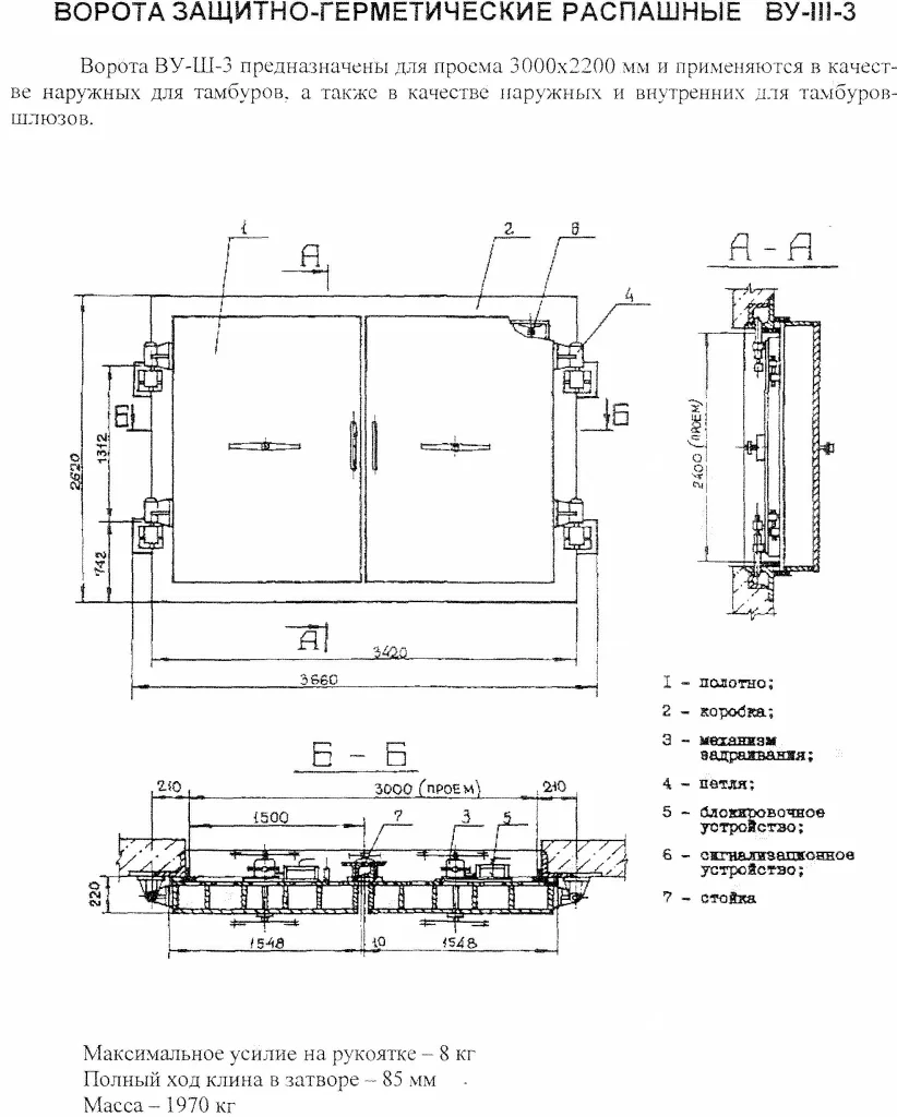
Ворота защитно-герметические распашные ВУ(ОЗ)–III-3
предназначены для установки в проемы 3000 х 2200 мм и применяются в качестве наружных для тамбуров, а также в качестве наружных и внутренних для тамбуров – шлюзов.
Ворота защитно-герметические распашные ВУ(ОЗ)–III-3
Ворота защитно-герметические распашные ВУ(ОЗ)–III-6
предназначены для установки в проемы 3000 х 2200 мм и применяются в качестве наружных для тамбуров, а также в качестве наружных и внутренних для тамбуров – шлюзов
Ворота защитно-герметические распашные ВУ(ОЗ)–III-6
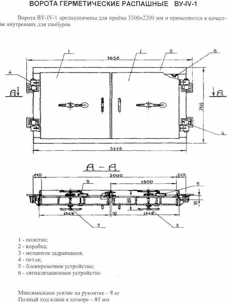
Ворота герметические распашные ВУ(ОЗ)–IV-1
предназначены для установки в проемы 3300 х 2200 мм и применяются в качестве внутренних для тамбуров.
Ворота герметические распашные ВУ(ОЗ)–IV-1
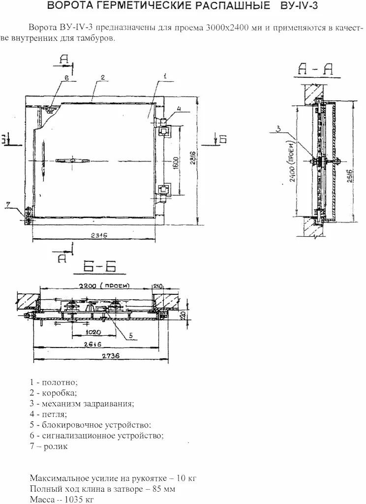
Ворота герметические распашные ВУ(ОЗ)–IV-3
предназначены для установки в проемы 3000 х 2400 мм и применяются в качестве внутренних для тамбуров
Ворота герметические распашные ВУ(ОЗ)–IV-3
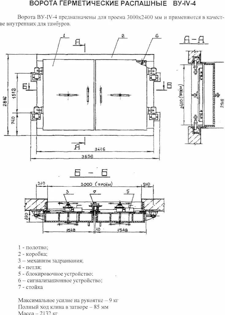
Ворота герметические распашные ВУ(ОЗ)–IV-4
предназначены для установки в проемы 3000 х 2400 мм и применяются в качестве внутренних для тамбуров
Ворота герметические распашные ВУ(ОЗ)–IV-4
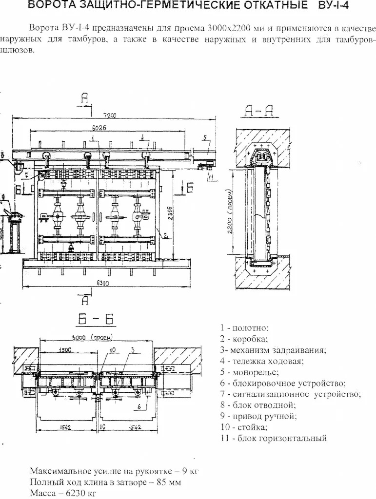
Ворота защитно-герметические откатные ВУ(ОЗ)–I-4
предназначены для установки в проемы 3000 х 2000 мм и применяются в качестве наружных для тамбуров, а также в качестве наружных и внутренних для тамбуров- шлюзов.
Ворота защитно-герметические откатные ВУ(ОЗ)–I-4
Ворота защитно-герметические откатные ВУ(ОЗ)–I-7
предназначены для установки в проемы 2200 х 2400 мм и применяются в качестве наружных для тамбуров, а также в качестве наружных и внутренних для тамбуров-шлюзов.
Ворота защитно-герметические откатные ВУ(ОЗ)–I-7
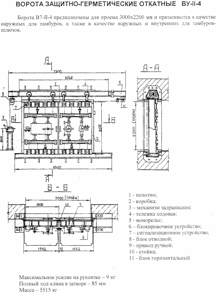
Ворота защитно-герметические откатные ВУ(ОЗ)–II-4
предназначены для установки в проемы 3000 х 2200 мм и применяются в качестве наружных для тамбуров, а также в качестве наружных и внутренних для тамбуров-шлюзов.
Ворота защитно-герметические откатные ВУ(ОЗ)–II-4
Ворота защитно-герметические откатные ВУ(ОЗ)–III-2
предназначены для установки в проемы 3000 х 3600 мм и применяются в качестве наружных для тамбуров, а также в качестве наружных и внутренних для тамбуров-шлюзов.
Ворота защитно-герметические откатные ВУ(ОЗ)–III-2
Ворота герметические откатные ВУ(ОЗ)–IV-2
предназначены для установки в проемы 3000 х 2200 мм и применяются в качестве внутренних тамбуров.
Ворота герметические откатные ВУ(ОЗ)–IV-2
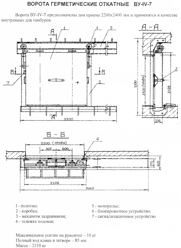
Ворота герметические откатные ВУ(ОЗ)–IV-7
предназначены для установки в проемы 2200 х 2400 мм и применяются в качестве внутренних тамбуров.
Ворота герметические откатные ВУ(ОЗ)–IV-7

