Защитно-герметические и герметические устройства используются для защиты ЗС ГО от негативных воздействий различного рода (взрывной волны, вредных веществ). К таким устройствам причисляют защитно-герметические ворота, герметические двери и ставни, защитно-герметические двери и ставни. Их основная функция – перекрыть предусмотренный конструкцией проем таким образом, чтобы изолировать убежище, обеспечить безопасность укрывающихся.

Рис. 1. Пример двери распашного типа
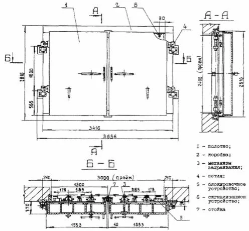
Для установки устройства стальная коробка приваривается к закладной арматуре проема, отверстия запениваются. Гермодверь, ворота, ставень устанавливаются в вертикальном положении. Плотность прилегания полотна к коробке и для раздвижных, и для распашных дверей обеспечивается резиновыми уплотнителями, которые монтируются по контуру коробки.
Металлические баки различных видов и размеров устанавливают в убежищах для хранения запасов питьевой воды.

Рис. 2. Дверь откатного принципа действия

Рис. 3.Ворота распашного типа

Рис. 4.Ворота откатного принципа
